Spatiu birouri 3 camere curte 100 mp si 2 parcari Turnisor de inchiriat

Turnisor, Sibiu

ID Oferta: 5464, Actualizat la: 19.11.2025, 206 afisari
Pret Inchiriere:   578 EUR  +TVA

Contacteaza agentul

Descriere spatiu birouri

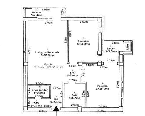
Agentia Imobiliara I-Imob va ofera spre inchiriere un spatiu de birouri cu incalzire in pardoseala, format din 3 camere, 2 balcoane deschise, curte 100 mp si o parcare subterana si una spraterana pe Soseaua Alba Iulia din Sibiu.

 Spatiul se afla intr-un imobil modern, finalizat in anul 2021 si beneficiaza de o suprafata o utila de 82 mp si distribuiti astfel:

-living cu bucatarie open-space 30 mp

- camera 1 cu o suprafata utila de 15 mp

- camera 2 cu o suprafata utila de 18 mp

-sas 5.5 mp

-o baie  6.20 mp

- grup sanitar 3.2 mp

-balcon de 9.4 mp.

-gradina 100 mp.

-parcare subterana

-parcare supraterana
           Pretul de inchiriere al spatiului este de 650 euro, nu conteaza daca esti proprietar sau esti un client in cautarea unei proprietati, noi suntem aici pentru a facilita totul, astfel incat lucrurile sa decurga perfect

Caracteristici spatiu birouri

  • Zona: Turnisor
  • Suprafata utila: 82 mp
  • Suprafata totala: 100 mp
  • Reper: Awa Oil
  • Etaj: parter
  • Stadiu: Finalizat
  • An Constructie: 2021
  • Clasa Energetica: A

Caracteristici generale spatiu birouri

  • Bucatarie:Utilata Da Nemobilata Deschisa
  • Calorifere:Nu
  • Lift:Lift
  • Pereti:Faianta Lavabil
  • Podele:Parchet Gresie
  • Stadiu Finisare:Finalizat
  • Strazi:Asfaltate
  • Structura Casa:Caramida
  • Utilitati:Curent Apa Canalizare Gaz Internet
  • Vecinatati Spatii:Autobuz Zona comerciala Banca Supermarket Fastfood Trafic Pietonal Benzinarie Central Parc Scoala/gradinita Centru logistic Terenuri

Localizare pe harta

Contacteaza agent

Oferte similare

Folosim Cookies Site-ul nostru foloseste cookies pentru a imbunatati experienta navigarii si a oferi servicii mai usor de utilizat.
Informatii detaliate despre cum le folosim in site si cum poti gestiona consimtamantul vei putea gasi in
Termeni si conditii de confidentialitate si Setari personalizate cookies Sunt de acord