Casa moderna 5 camere teren 490 mp terasa acopertia in Cristian de vanzare

, Cristian

ID Oferta: 5446, Actualizat la: 20.10.2025, 283 afisari
Pret Vanzare:   245,000 EUR 

Contacteaza agentul

Descriere casa vila

   Agentia imobiliara I-IMOB va propune spre vanzare o casa moderna, finalizată în 2024 cu o suprafata generoasa de 145 mp utili pe 2 niveluri, aerisita si luminoasa, situată într-o zonă liniștită și bine cotată din Cristian, la câteva sute de metri de centrul localității, ideală pentru o familie care caută intimitate, lumină naturală și o construcție de calitate superioară .

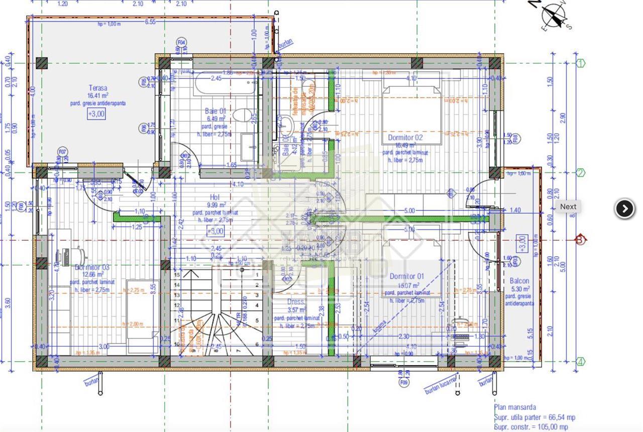
 Compartimentare:

5 camere ( living plus bucatarie, 3 dormitoare spațioase, birou)

2 băi moderne cu toalete incorporate

1 bucătărie deschisă, nemobilată

2 balcoane, 1 debara

2 terase, dintre care una acoperită

1 spatiu tehnic cu iesire pe terasa

Detalii tehnice:

Suprafață construită: 210 mp

Suprafață utilă: 145 mp

Suprafață teren: 485 mp

Deschidere stradală: 18 ml

Amprentă la sol: 105 mp

Curte liberă: 380 mp

Construcție și finisaje:

Structură: cărămidă Porotherm + beton armat

Izolație termică exterioară: vată bazaltică

Acoperiș: țiglă ceramică

Ferestre: termopan PVC, cu 3 foi de sticlă și profil cu 5 camere

Podele: industriale, pereți lavabila marca Caparol

Încălzire: prin pardoseală (fără calorifere)

 Alte avantaje:

Curte individuală – ideală pentru grădină, zonă de relaxare sau loc de joacă

Priveliște superbă spre munți

Străzi asfaltate și vecinătăți aerisite

Fațadă modernă cu piatră naturală și lemn

Pretul de vanzare al acestei case este de 245000 euro cu TVA 21% inclus

Caracteristici casa vila

  • Numar Camere: 5
  • Zona:
  • Suprafata utila: 145 mp
  • Suprafata totala: 210 mp
  • Reper:
  • Strazi: Asfaltate
  • Numar Dormitoare: 4
  • Tip casa: Individuala
  • Numar Bai: 2
  • Numar Bucatarii: 1
  • An Constructie: 2024
  • Suprafata Teren: 485 mp
  • Acces: Pietonal
  • Front: 18 ml / nr fronturi 2
  • Destinatie: Locuinta
  • Disponibilitate: Imediat
  • Clasa Energetica: A

Caracteristici generale casa vila

  • Acces auto:Acces auto
  • Acces Casa:Pietonal
  • Acces internet:Fibra optica
  • Acoperis:Tigla
  • Bucatarie:Da Nemobilata Deschisa
  • Calorifere:Nu
  • Contorizare:Apometre Contor electric Contor gaz
  • Curte:Pavata
  • Destinatie:Locuinta
  • Ferestre Casa:Term. PVC
  • Geam baie:Da
  • Incalzire Casa:Incalzire prin pardoseala
  • Izolatii termice:Exterior
  • Materiale:Caramida Porotherm Beton Armat
  • Mobilat:Nemobilat
  • Pereti:Lavabil
  • Podele:Podele industriale
  • Stadiu Finisare:Finalizat
  • Strazi:Asfaltate
  • Teren imprejmuit:Teren imprejmuit
  • Tip Casa:Individuala
  • Tip Curte:Individuala
  • Usa intrare:PVC
  • Zidarie:Caramida

Localizare pe harta

Contacteaza agent

Folosim Cookies Site-ul nostru foloseste cookies pentru a imbunatati experienta navigarii si a oferi servicii mai usor de utilizat.
Informatii detaliate despre cum le folosim in site si cum poti gestiona consimtamantul vei putea gasi in
Termeni si conditii de confidentialitate si Setari personalizate cookies Sunt de acord