Casa cu 4 camere 3 bai si terasa in Selimbar de vanzare

, Selimbar

ID Oferta: 5900, Actualizat la: 5.2.2026, 5 afisari
Pret Vanzare:   215,000 EUR 

Contacteaza agentul

Descriere casa vila

Agentia imobiliara I-IMOB va ofera spre vanzare un proiect inedit de 13 case, de tip duplex cat si individuale, intins pe 5000 mp teren, in Selimbar zona Primarie, fiecare avand teren liber intre 120 mp si 280 mp.

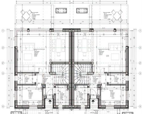
Locuinta pe care o prezentam spre vanzare este o casa de tip duplex cu 4 camere, 3 bai, balcon, terasa si 2 locuri de parcare privata, incalzire in pardoseala, in Selimbar - zona Primarie, pretabila atat locuinta cat si investitie, cu o suprafata totala de 144 mp din care 120 mp utili, un regim de P+E+ Pod, intr-un imobil edificat din caramida, izolat termic si fonic la exterior, edificat in anul curent.

Locuinta este situata intr-o zona foarte frumosa si linistita de case, cu acees rapid spre oras, spre Autostrada A1, dar si totodata in apropiere de numeroase puncte de interes public ac de exmplu: Shopping City Mall, Institutii Scolare, Gradinite, Institutii Bancare, Spatii Verzi, mijloace de transport si multe alte.

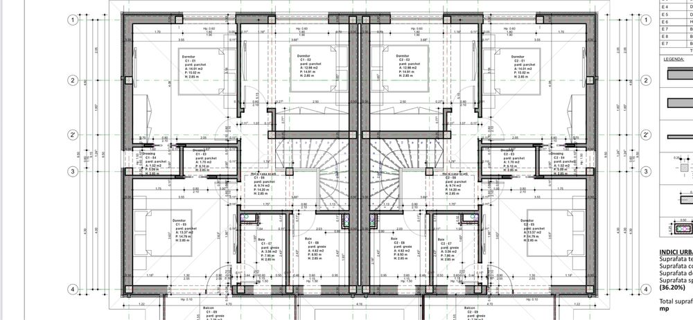
Compartimentarea este una foarte buna astfel ca parterul include un living generos, bucatarie separata, camera tehnica si baie; etajul dispune de 3 dormitoare, dintre care dormitorul matrimonial beneficiaza de baie si dressing propriu, un al doilea dormitor este prevazut cu dressing, iar o baie amplasata pe hol deserveste celelalte doua dormitoare.

Pretul de vanzare al acestor case la stadiul de ALB este de 215.000 Euro ( tva inclus), cu posibilitatea achititionarii si la stadiul de CHEIE, unde se mai adauga suma de 20.000 Euro.

Se accepta orice varinta de Creditare Bancara.

 

 

 

 

Caracteristici casa vila

  • Numar Camere: 4
  • Zona:
  • Suprafata utila: 120 mp
  • Suprafata totala: 120 mp
  • Reper: Primarie
  • Strazi: Asfaltate
  • Numar Dormitoare: 3
  • Tip casa: Duplex, Individuala
  • Numar Bai: 3
  • Numar Bucatarii: 1
  • An Constructie: 2026
  • Suprafata Teren: 350 mp
  • Acces: Auto, Pietonal
  • Front: 12 ml / nr fronturi 1
  • Destinatie: Locuinta
  • Clasa Energetica: A

Caracteristici generale casa vila

  • Acces auto:Acces auto
  • Acces Casa:Auto Pietonal
  • Acces internet:Fibra optica Cablu Wireless
  • Acoperis:Tigla
  • Bucatarie:Nemobilata Da
  • Calorifere:Nu
  • Contorizare:Apometre Contor electric Contor gaz
  • Curte:Pavata Gradina
  • Destinatie:Locuinta
  • Dotari:Wifi
  • Ferestre Casa:Term. PVC
  • Geam baie:Da
  • Incalzire Casa:Centrala Termica Incalzire prin pardoseala
  • Izolatii termice:Exterior
  • Materiale:Caramida
  • Mobilat:Nemobilat
  • Pereti:Lavabil
  • Plansee:Beton
  • Stadiu Finisare:Finalizat
  • Strazi:Asfaltate
  • Teren imprejmuit:Teren imprejmuit
  • Tip Casa:Individuala Duplex
  • Tip Curte:Individuala
  • Usa intrare:Metal
  • Utilitati:Curent Apa Gaz
  • Vecinatati Spatii:Autobuz Benzinarie Piata Mall Scoala/gradinita Supermarket
  • Zidarie:Caramida

Localizare pe harta

Contacteaza agent

Folosim Cookies Site-ul nostru foloseste cookies pentru a imbunatati experienta navigarii si a oferi servicii mai usor de utilizat.
Informatii detaliate despre cum le folosim in site si cum poti gestiona consimtamantul vei putea gasi in
Termeni si conditii de confidentialitate si Setari personalizate cookies Sunt de acord