Apartament 3 camere cu pivnita zona Terezian de vanzare

Terezian, Sibiu

ID Oferta: 5260, Actualizat la: 28.11.2025, 439 afisari
Pret Vanzare:   122,000 EUR 

Contacteaza agentul

Descriere apartament

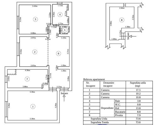
Agentia Imobiliara I-Imob va propune spre vanzare un apartament format din 3 camere cu suprafata de 66 mp utili situat la parter al unui imobil cu 4 etaje, in zona Terezian din Sibiu.

Cu o suprafata totala de 80 mp din care 66 mp sunt utili intr-o zona foarte frumoasa si animata, cu magazine, piață, școlii, parcuri și grădinițe in apropiere, acces usor la A1 ceea ce face acest apartament potrivit atât pentru familii, cât și pentru tineri.

Compartimentarea  dupa cum urmeaza:

• Hol;
• Bucatarie;
• 2 Bai;
• Living;
• 2 Dormitore;
• Hol intermediar;
• Camara;

Finisajele interioare sunt moderne:
• Usa intrare: metal;
• Usi interioare: celulare;
• Tamplarie ferestre: pvc;
• Pereti: vopsea lavabila, faianta;
• Podele: parchet, gresie.

Apartamentul se vinde partial mobilat si utilat cu: plita pe gaz, cuptor, hota, masina de spalat rufe, masina de spalat vase, frigider cu congelator.

Apartamentul se vinde mobilat și utilat partial, la prețul de 122.000 Euro. Ca și modalitatea de plată, se acceptă și plata prin credit bancar.Suntem aici pentru a facilita totul, astfel incat lucrurile sa decurga perfect!

ID intern: 5260.

Caracteristici apartament

  • Zona: Terezian
  • Suprafata utila: 66 mp
  • Suprafata totala: 80 mp
  • Confort: 1
  • Compartimentare: decomandat
  • Etaj: parter/4
  • Numar Bai: 2
  • Numar Camere: 3
  • An Constructie: 1980
  • Clasa Energetica: A

Caracteristici generale apartament

  • Acces internet:Fibra optica
  • Bucatarie:Da Mobilata
  • Calorifere:Da
  • Contorizare:Apometre Contor electric Contor gaz
  • Destinatie:Locuinta
  • Ferestre:PVC
  • Geam baie:Da
  • Incalzire:Centrala proprie
  • Interfon:Interfon
  • Izolatii termice:Exterior
  • Lift:Nu
  • Mobilat:Stare Buna
  • Pereti:Faianta Lavabil
  • Podele:Parchet Gresie
  • Stadiu Finisare:Finalizat
  • Strazi:Asfaltate
  • Structura Casa:Caramida
  • Tip Bloc:Bloc
  • Tip Structura Bloc:Caramida
  • Usa intrare:Metal
  • Usi:Din Lemn
  • Utilitati:Gaz Apa Curent
  • Vecinatati Spatii:Autobuz Zona comerciala Banca Supermarket Fastfood Parc Scoala/gradinita
  • Zidarie:Caramida

Localizare pe harta

Contacteaza agent

Oferte similare

Folosim Cookies Site-ul nostru foloseste cookies pentru a imbunatati experienta navigarii si a oferi servicii mai usor de utilizat.
Informatii detaliate despre cum le folosim in site si cum poti gestiona consimtamantul vei putea gasi in
Termeni si conditii de confidentialitate si Setari personalizate cookies Sunt de acord