Apartament 2 camere etaj 3 cu balcon zona bd. Mihai Viteazu de vanzare

Mihai Viteazul, Sibiu

ID Oferta: 5945, Actualizat la: 12.2.2026, 93 afisari
Pret Vanzare:   81,000 EUR 

Contacteaza agentul

Descriere apartament

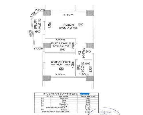
Agentia Imobiliara I-Imob va propune spre vanzare un apartament decomandat cu 2 camere, cu o suprafata utila de 61 mp utili cu balcon de 8 mp, situat pe Bd. Mihai Viteazu, pretabil atat locuinta cat si investitie.
Imobilul este situat  intr-o zona foarte bine cotata pe piata imobiliara, avand in apropiere toate punctele de interes socilal, precum: Shopping City Mall, banci, scoli,gradinite,piata Rahovei etc.
Imobilul este finisat la cheie, dupa cum reiese din poze, bucataria mobilata si utilata, perdele si draperii in camere.
Suprafata totala de 61 mp utili distribuiti astfel:
- dormitor 
- living foarte luminos
- bucatarie mobilata
- baie  
- balcon 8 mp, cu iesire din living
- hol 
Locuința beneficiază de o compartimentare practică, spații luminoase și o atmosferă primitoare, oferind confort și funcționalitate. Poziționarea asigură acces rapid către puncte de interes.
Apartamentul reprezintă o oportunitate excelentă pentru cei care își doresc un cămin echilibrat sau o investiție sigură pe termen lung.
Acest apartament se vinde la stadiul de ALB, dupa cum se reiese din poze.
Pentru mai multe informații și programarea unei vizionări, contactați agenția 
I-Imob.
Pret 81.000 Euro TVA inclus

Caracteristici apartament

  • Zona: Mihai Viteazul
  • Suprafata utila: 61 mp
  • Suprafata totala: 80 mp
  • Confort: 1
  • Compartimentare: decomandat
  • Etaj: 9/17
  • Numar Bai: 1
  • Numar Balcoane: 1
  • Numar Camere: 2
  • An Constructie: 2015
  • Clasa Energetica: 0

Caracteristici generale apartament

  • Balcoane:Nu este inchis
  • Destinatie:Locuinta
  • Geam baie:Nu
  • Interfon:Interfon
  • Izolatii termice:Exterior
  • Lift:Lift
  • Mobilat:Nemobilat
  • Pereti:Nefinisat
  • Stadiu Finisare:Finalizat
  • Structura Casa:Caramida
  • Tip Bloc:Bloc
  • Tip Structura Bloc:Placi
  • Usa intrare:Metal
  • Vecinatati Spatii:Autobuz Zona comerciala Banca Supermarket Piata Mall
  • Zidarie:Caramida

Localizare pe harta

Contacteaza agent

Oferte similare

Folosim Cookies Site-ul nostru foloseste cookies pentru a imbunatati experienta navigarii si a oferi servicii mai usor de utilizat.
Informatii detaliate despre cum le folosim in site si cum poti gestiona consimtamantul vei putea gasi in
Termeni si conditii de confidentialitate si Setari personalizate cookies Sunt de acord